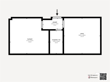
Představuji Vám ke koupi byt v původním stavu v Holýšově, v ulici Ruská 373. Pro lepší představu o bytu je Vám k dispozici i 3D virtuální prohlídka, video prezentace a fotogalerie včetně záběrů pořízených dronem. Ucelenou prezentaci bytu můžete zhlédnout na odkaze, který je součástí video prohlídky. Parametry bytu: Byt o dispozici 1+1 má podlahovou plochu 35 m² a nachází se v 2. nadzemním podlaží v cihlovém domě a je v původním stavu vhodném k rekonstrukci. Součástí dispozice je jedna obytná místnost, kuchyně, předsíň a koupelna se zděným jádrem a WC. Na podlahách je kombinace lina, koberce a dlažby. K bytu náleží sklep o výměře přibližně 7 m² a půdní komora přibližně 3 m². V suterénu domu jsou také společné prostory. Technické informace: • Voda: obecní vodovod • Elektřina: hliníkové rozvody • Plyn: v domě, možnost přivést do bytu • Ohřev vody: elektrický bojler • Vytápění: elektrické konvektory Informace o domě: • Budova zatím neprošla kompletní revitalizací, avšak byla provedena výměna střešní krytiny, oken a vstupních dveří, což přispívá k lepší energetické úspornosti. Rovněž byly vyměněny zvonky. • Energetický štítek budovy není k dispozici. V souladu se zákonem proto uvádíme nejnižší možnou třídu – G. Lokalita: Holýšov je menší město ležící nedaleko Plzně, ideální pro klidný život mimo velkoměsto, přitom s dobrou dostupností do centra Plzně autem či vlakem. Město nabízí základní občanskou vybavenost – školy, školky, sportoviště, obchody i služby – a okolní příroda láká k procházkám a cyklovýletům. Pokud hledáte byt k investici nebo jako startovací byt s možností si jej přízpůsobit podle své představy, může být pro Vás tento byt tou správnou volbou. Pro prodej bytu zajišťuji kompletní realitní a právní servis a financování hypotečním úvěrem. Kontaktujte mě pro domluvení prohlídky: Miroslav Hlaváč TAURUM reality Uvedené výměry jsou orientační.
Cena
2 550 000 Kč
Dispozice
1+1
Konstrukce
Cihla
Patro
1. patro
Výměra
35 m²
Číslo nabídky
250175

























