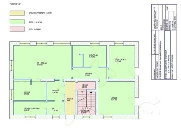
PRODÁNO - Představuji k prodeji byt o dispozici 3+1 a výměře 93m2 v novostavbě domu v Dvořákově ul. v Rokycanech. Podívejte se na samostatnou stránku bytu: byt-dvorakova.cz Dům je kompletně nově postavený a obsahuje 2 bytové jednotky. K bytu patří i jedno parkovací místo umístěné hned vedle domu. Zároveň je možno využívat oplocenou zatravněnou zahradu cca 170 m2 velkou, na kterou jsou přímé vstupy ze dvou pokojů tohoto bytu, protože byt je v přízemí. Užívání zahrady je společné, mohou ji užívat i obyvatelé druhého bytu v patře. Součástí prodeje bytu je tedy i prodej poloviny zahrady. Byt i dům jsou velmi pěkně a kvalitně postaveny. Dům je postavený z 45cm silných tepelně izolačních tvárnic Ytong Lambda. Dům je napojen na obecní vodovod, kanalizaci i plynovod. Vytápění je zajištěno plynovým kotlem, v pokojích jsou moderní radiátory a v koupelně je teplovodní podlahové vytápění. Ohřev teplé vody zajišťuje také plynový kotel, doplněný zásobníkem na teplou vodu a tzv. třetí vodou, tedy okruhem navíc, který zajišťuje, že z kohoutku teče vždy hned teplá voda. Okna v bytě jsou dřevěná s protihlukovou úpravou. Podlahy jsou vybaveny těmito krytinami: dřevěná dubová podlaha (obývací pokoj, chodba, kuchyň), vinylová podlaha (2 obytné pokoje), dlažba (koupelna, technická místnost, předsíň). Pod podlahovými krytinami je stěrka, beton a zateplení 20 cm polystyrenem.V technické místnosti je prostor na pračku a sušičku a je zde umístěn zmíněný plynový kotel, zásobník na teplou vodu, výlevka a rekuperační jednotka, která zajišťuje přívod čerstvého vzduchu do obývacího pokoje a kuchyně. U vstupních protipožárních dveří je videozvonek. V bytě je též příprava na zavedení internetu. Byt je členěn na tyto prostory: vstupní předsíň s velkou šatní stěnou, technická místnost s wc, obývací pokoj s přípravou na místo pro jídelní stůl a s přípravou na instalaci televize, kuchyň s kompletně vybavenou kuchyňskou linkou (lednice, mrazák, trouba, mikrovlnná trouba, plynová varná deska, cirkulační digestoř, myčka), chodba, koupelna s podlahovým teplovodním vytápěním, vanou, sprchovým koutem a kombinovaným žebříkem na sušení ručníků (ten je napojen jak na plynový kotel, tak je i možné jej mimo topnou sezónu zapojit do zásuvky) a dva pokoje se samostatnými vchody a přímými vstupy na zahradu. Byt se prodává včetně vybavení vyobrazeném na fotografiích. V Rokycanech je veškerá občanská vybavenost. Blízko domu je například škola a městská plovárna s bazénem. Velmi dobrá je dostupnost na dálnici D5 a tím i spojení do Prahy a Plzně. Koupi bytu doporučuju vzhledem k jeho vysoké kvalitě, parkovacímu místu a možnosti využívat zahradu. Přechodem vlastnictví bytu na nového majitele se tento nový majitel stane i správcem domu. Pro koupi bytu zajistím kompletní realitní a právní servis a financování hypotečním úvěrem. V případě více zájemců bude byt prodám zájemci jsou nejvýhodnější nabídkou. Kontaktujte mne, prosím, pro domluvení prohlídky: Jan Štěpánek TAURUM reality
Cena
6 250 000 Kč
Dispozice
3+1
Konstrukce
Cihla
Patro
Přízemí
Výměra
93 m²
Číslo nabídky
220003





























Svým klientům zajistím prodej jejich domu, bytu, pozemku.
Více o tom, jak pracuji naleznete na mém webu.