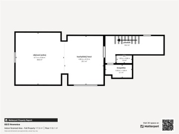
PRODÁNO - Představuji k prodeji nový rodinný dům na adrese Hromnice 63, okres Plzeň sever. Obec Hromnice se nachází 7 minut jízdy autem od okraje Plzně v pěkné přírodě údolí říčky Třemošná. Za zmínku stojí i Hromnické jezírko a jeho okolí. Samotný dům je nově postavený z tvárnic. Předmětem prodeje v rámci tohoto inzerátu je dům dále od silnice s pozemkem dle nákresu (viz zákres ve fotografii z výšky). Dispozice domu: Dům je o dispozici 5+kk a podlahové ploše přibližně 172 m2. V přízemí je vstupní předsíň ze které vede schodiště do patra. Dále je v přízemí velký obývací pokoj, kuchyň s jídelnou, samostatné wc a koupelna s vanou. V patře je předsíň, koupelna se sprchovým koutem a wc a 3 samostatné pokoje. Celkem má pozemek výměru 748 m2. Technické informace: Dům je postaven v moderním a kvalitním standardu. Okna jsou opatřena trojskly a vybavena předokenními zabudovanými žaluziemi. Vytápění je řešeno tepelným čerpadlem a teplovodním podlahovým topením v obou podlažích. Ohřev vody zajišťuje také tepelné čerpadlo plus objemný zásobník na teplou vodu. Odpadní vody jsou čištěny čističkou odpadních vod a svedeny do dešťové kanalizace. Dům je napojen na obecní vodovod. Elektřina je 230V. Stavba byla dokončena v létě 2024. Dům je zároveň kompletně odizolovaný a fasáda je odvětrávaná, dům je tedy maximálně chráněn proti vlhkosti. Na pozemku je kopaná studna, odhadem cca 10m hluboká. Informace k možnosti zařízení domu: Dům je postaven tak, že si nový majitel může vybrat dle svého vkusu podlahovou krytinu, vnitřní dveře, zárubně, kuchyňskou linku, svítidla atd... Stavitel je schopen tyto věci zajistit na základě požadavků kupujícího a předložené nabídky, na náklady kupujícího. Předběžná nabídka je již sestavená a je k dispozici k předání na prohlídce domu. Dům není v současné době zkolaudovaný, ale kolaudaci provede prodávající na vlastní náklady a to včetně: projektu a kolaudace ČOV, revize elektřiny, možnosti využití dotačního programu. Dům je vhodný pro rodinné bydlení, s výhodou krátké vzdálenosti do Plzně a s možností si dům dozřídit dle vlastních přání. Pro koupi domu zajistím kompletní realitní a právní servis a financování hypotečním úvěrem. Kontaktujte mě pro domluvení prohlídky: Jan Štěpánek TAURUM reality Uvedené výměry jsou orientační.
Cena
7 950 000 Kč
Dispozice
5+kk
Konstrukce
Cihla
Výměra
171.5 m²
Číslo nabídky
240123





























