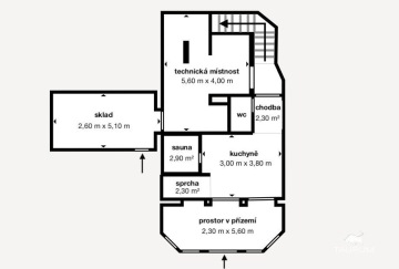
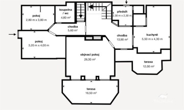
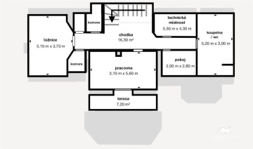
PRODÁNO - Představuji k prodeji třípodlažní rodinný dům se skvělým výhledem do údolí Berounky, na klidném místě na adrese K Černé Skále 183 v Hlásné Třebani. Podívejte se na samostatnou stránku domu – odkaz ve videoprohlídce. Na této stránce je více fotografií domu. Kompletní představu o dispozici a prostorovém uspořádání získáte z 3D virtuální prohlídky zde v inzerci. Lokalita: Obec Hlásná Třebaň leží v chráněné krajinné oblasti Český kras, nedaleko řeky Berounky, zhruba 20 km jihozápadně od Prahy. Díky své poloze nabízí klidné bydlení v přírodě s výbornou dostupností do hlavního města, autem, autobusem či vlakem směrem na Prahu–Radotín a Smíchov. V okolí této obce se nachází veškerá občanská vybavenost a také řada turistických a cyklistických tras, což z obce činí atraktivní lokalitu nejen pro rekreaci, ale i trvalé bydlení. Dispozice: Dům je třípodlažní, má dispozici 6+1 plus další technické a úložné místnosti. V suterénu se nachází studio se sociálním zařízení, saunou, kuchyní a venkovní terasou. Dále je zde technická místnost a sklad. Ve prvním podlaží se nachází předsíň, kuchyně, obývací pokoj s oboustranným krbem, dva samostatné neprůchozí pokoje, koupelna s toaletou, úložné prostory a dvě terasy přístupné z kuchyně a obývacího pokoje. Ve druhém podlaží je velká ložnice, pracovna s balkonem, skladovací komory a místnosti a velká koupelna s toaletou, vanou a sprchovým koutem. Na pozemku stojí garáž o výměře 23 m² s jedním parkovacím stáním. Další parkovací místa jsou v prostoru před garáží u vchodu do domu. Celková výměra pozemku je 2.001 m², a to včetně vlastní příjezdové cesty. Oplocený pozemek má rozlohu 1.512 m² a je ve velmi hezkém, udržovaném stavu, s množstvím zeleně a kruhovým bazénem. Technické informace: Dům je zděný, se železobetonovými stropy a střechou pokrytou pálenými taškami. Podlahy jsou betonové, s povrchy z keramické dlažby, plovoucími podlahami a koberci. Okna jsou plastová s izolačními dvojskly. Vytápění zajišťuje teplovodní podlahové topení v kombinaci s radiátory, vše napojené na kvalitní zánovní tepelné čerpadlo z roku 2023, které zároveň ohřívá vodu. Pro dotopení a příjemnou atmosféru je k dispozici oboustranný krb. Pitná voda je do domu čerpaná z vlastního 69 m hlubokého vrtu na pozemku a odpadní vody jsou odváděny do vlastní čistírny odpadních vod, která je pravidelně servisovaná. Přípojka plynu se nachází na hranici pozemku a je tedy možné se na ni připojit. Stejně tak i přípojka obecního vodovodu je na hranici pozemku. Na pozemek je zavedena voda se zahradním vodoměrem. Energetická náročnost budovy je klasifikována jako třída B – velmi úsporná. Pro koupi domu zajišťuji kompletní realitní a právní servis včetně financování hypotečním úvěrem. Kontaktujte mě, prosím, pro domluvení prohlídky: Jan Štěpánek TAURUM reality Uvedené výměry jsou orientační.
Cena
20 500 000 Kč
Dispozice
6+1
Konstrukce
Cihla
Výměra
249 m²
Číslo nabídky
250158





























