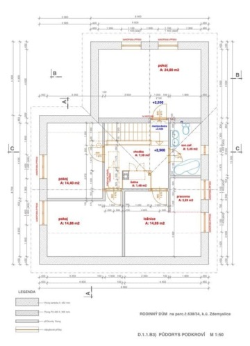
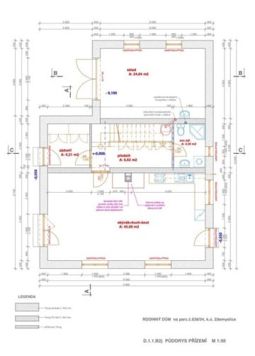
PRODÁNO Představujeme k prodeji rozestavěný rodinný dům (hrubou stavbu) v obci Zdemyslice u Blovic, v okrese Plzeňjih. Adresa webu nemovitosti se nachází ve videu. Dům se rozprostírá na rovinatém a oploceném pozemku o celkové výměře 1.310 m2 v nově vznikající zástavbě rodinných domů na kraji Zdemyslic. Dům je navržen jako patrový s dispozicí 5+kk + garáž/technická místnost. Celková podlahová plocha domu činí 173 m2. Dům se prodává včetně stávajícího projektu a díky tomu, že dům je ve fázi hrubé stavby, je možné provést změny, které souvisí například s typem vytápění, úpravou dispozic, s typem oken, obkladů, krytin a dalšího. Dům je zděný z cihly Porfix premium 500. K dispozici jsou všechny inženýrské sítě včetně elektřiny a plynu, jenž jsou přivedeny k pozemku do samostatně stojícího rozvaděče na jeho hranici. Stavba je momentálně připojena na obecní vodovod a kanalizaci. Nový majitel má možnost dům převzít a dokončit dle svých představ, nemovitost je tedy ideální volbou pro ty, kteří hledají klidné bydlení s možností přizpůsobení si interiéru podle sebe. Zdemyslice se nachází pouhých 20 minut jízdy od Plzně a 5 minut od Blovic, kde se nacházejí školy, školky, zdravotnické zařízení, obchody i restaurace. Vlaková zastávka je od domu vzdálená 10 minut pěší chůzí. Zaujal li Vás dům, zavolejte mi nebo napište, ráda Vás seznámím jak s domem, tak s celým projektem. Budu se na Vás těšit na prohlídce. Pro koupi domu zajistíme kompletní realitní a právní servis a financování hypotečním úvěrem. Kontaktujte mě, prosím, pro domluvení prohlídky: Bc. Hana Procházková TAURUM reality s.r.o. Uvedené výměry jsou orientační.
Cena
6 990 000 Kč
Dispozice
5+kk
Konstrukce
Cihla
Výměra
1310 m²
Číslo nabídky
240109





























