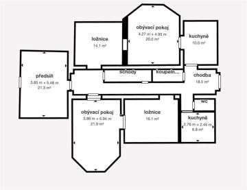
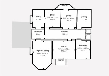
PRODÁNO - Představu ji vám k prodeji prostornou vilu z roku 1896 na skvělém místě na adrese: 17. listopadu 34, Nová Huť - Dýšina. Vila stojí v Nové Huti v katastru obce Dýšina, který dříve sloužila jako rekreační a sportovní oblast a to díky své poloze a okolní přírodě. Nová Huť je vzdálená 6 minut jízdy od okraje Plzně, 9 minut jízdy od dálnice D5 a je dobře dostupná i autobusem příměstské dopravy, který jezdí přes den přibližně jednou za hodinu. Autobusová zastávka je vzdálena cca 150m od vily. Kolem Nové Huti protéká řekla Klabava, která tvoří oblouk okolo větší části obce. Na řeku navazují rozsáhlé lesy dosahující na jižní straně k vodní nádrži Ejpovice a na severovýchodě ke Kokotským rybníkům. Mezi Novou Hutí a nádrží Ejpovice je pěkné profesionální 18 jamkové golfové hřiště Grennsgate. Nejbližší jamky jsou vzdálené cca 600 m od domu vzdušnou čarou. Samotná vila stojí na pozemku o výměře 3.505 m2. Tento pozemek má jak hlavní vjezd z ulice 17. listopadu, tak i vedlejší přístup z ulice U Jezu a z pozemku je tedy přímý a pohodlný přístup k řece. Zastavěná plocha, včetně vedlejších zahradních staveb je cca 296 m2 a plocha zahrady je tedy cca 3.209 m2. Zahrada je udržovaná, travnatá, s řadou vzrostlých stromů, jehličnatých i listnatých. Vegetace kolem zahrady zajišťuje naprosté soukromí a velikost zahrady poskytuje bohatý prostor, případně i na stavbu dalšího domu. Dispozice vily: Vila je 3 podlažní plus je částečně podsklepená. V přízemí je 5 pokojů, 2 kuchyně a wc s koupelnou. V patře je dalších 6 pokojů a 2 kuchyně a v podkroví jsou 2 pokoje a velké půdní prostory. Vedle vily jsou na pozemku další vedlejší stavby sloužící jako úložiště. Technické informace: Vila je smíšená stavba převážně z cihel. Je v relativně udržovaném stavu, který vyžaduje rekonstrukci. Střecha je kryta pálenými taškami. Elektrické rozvody jsou v přízemí v mědi, v patře hliníkové. K dispozici je 230V i 400V. Odpady jsou svedeny do jímky na pozemku o objemu cca 8m2. Voda je čerpána z vlastní kopané studny se silným pramenem, hloubka cca 8-9m2. Rozvody v domě jsou plastové. Plynová přípojka je k dispozici na okraji pozemku ve sloupku. Do domu je zavedena pevná linka od O2. Vila se prodává bez zobrazeného nábytku. Výhody: - vynikající velmi dobře dostupné místo blízko Plzně v klidné lokalitě v přírodě - velká zahrada se vzrostlými stromy, poskytující soukromí - samotná stavba se svojí historií a duší - velký prostor uvnitř - vlastní zdroj vody na pozemku Pro koupi vily zajistím kompletní realitní a právní servis. Kontaktujte mě prosím pro domluvení prohlídky: Jan Štěpánek TAURUM reality
Cena
15 900 000 Kč
Dispozice
Větší než 9+2
Konstrukce
Cihla
Výměra
298 m²
Číslo nabídky
240095





























