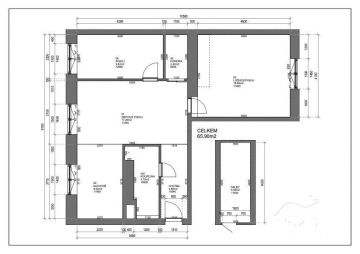
PRODÁNO - Představujeme k prodeji byt o dispozici 3+kk ve Spolkové ulici v Plzni Lobzích. Samostatná stránka: byt-spolkova.cz Byt je umístěný ve 3. patře cihlového domu. Kromě dvou pokojů a obývacího pokoje s kuchyní má také k dispozici šatnu/komoru pro uložení věcí. Majitelé jej v minulosti kompletně rekonstruovali. Díky této podařené rekonstrukci vytvořili tak krásný a útulný domov. V rámci rekonstrukce proběhla částečná změna dispozice, díky které vznikl prostorný obývací pokoj s kuchyní a komora. Dále vznikla nová koupelna s WC, byla vyměněna kuchyňská linka, došlo k výměně podlah, nové štuky a omítky, částečná výměna elektroinstalace, dveřní křídla, výměna oken za plastová. K bytu patří zděný sklep o velikosti 6 m2. Do bytu jsou zavedeny všechny inženýrské sítě. Voda je do domu dodávaná dálkově, stejně tak ohřev vody a vytápění jsou přivedeny dálkově. Okna bytu směřují na východní a západní stranu. Doporučuji tento byt pro jeho perfektní stav a umístění v místě s velmi krátkou dojezdovou vzdáleností do centra Plzně, do přírody či nákupních /obchodních středisek (Lidl, Tesco, Centrum Doubravka). Zastávka MHD se nachází pár kroků od domu a parkovat lze na parkovišti přímo před domem či v jeho okolí. Hledáte-li byt za Plzní a uvítáte-li skvělý stav po rekonstrukci, zavolejte mi, ráda Vám ho ukážu. Pro koupi bytu zajistím kompletní realitní a právní servis a financování hypotečním úvěrem. Kontaktujte mě pro domluvení prohlídky: Hana Procházková TAURUM reality
Cena
4 350 000 Kč
Dispozice
3+kk
Konstrukce
Cihla
Patro
3. patro
Výměra
66 m²
Číslo nabídky
220063





















Svým klientům pomáhám prodat jejich nemovitost lépe a rychleji, než by zvládli sami. Více o tom, jak pracuji naleznete na mém webu.
Domluvte si se mnou prohlídku
Hana Procházková
+420 728 174 601
hana.prochazkova@taurum.cz
https://www.hanaprochazkova.cz