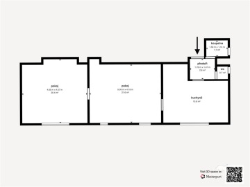
Představuji vám k prodeji prostorný byt 2+1, který se nachází v 1. nadzemním podlaží bytového domu, na adrese Hlohová 128, okres Domažlice. Ucelenou prezentaci bytu můžete shlédnout na odkaze, který je součástí video prohlídky. Lokalita a dostupnost: Hlohová je klidná obec vzdálená pouhé 3 minuty jízdy autem od Staňkova, který se nachází na hlavní trase mezi Plzní a Domažlicemi. Staňkov nabízí komplexní občanskou vybavenost, od škol přes zdravotnictví až po kulturu a služby. Parametry bytu: Byt o dispozici 2+1 má podlahovou plochu 64,4 m² a nachází se v přízemí domu. K bytu náleží komora pod schodištěm. Podlahy tvoří koberce a linoleum, v koupelně a na toaletě je dlažba. Koupelna s WC prošla rekonstrukcí. V koupelně se nachází sprchový kout. Kuchyňská linka je v dobrém stavu. Nová radiátorová tělesa s měděnými rozvody. Byt je připraven k okamžitému užívání, avšak bude vhodné provést seškrabání, vyštukování a výmalbu. Technické informace: • Elektroinstalace v mědi (230 V / 400 V) • Vytápění a ohřev teplé vody zajišťují dva kondenzační plynové kotle, které jsou umístěny v technické místnosti v budově. • Obecní vodovod • Kanalizace • Kamerový systém Revitalizace domu: • nová plechová střešní krytina • plastová okna s dvojsklem • nové vstupní dveře • zateplení budovy (10 cm polystyrenem) a nová fasáda • Energetický štítek budovy není k dispozici. V souladu se zákonem proto uvádíme nejnižší možnou třídu – G. Obyvatelé domu jsou spoluvlastníky pozemku o výměře 850 m², který zahrnuje plochu pod domem i jeho okolí a je určen k plnému užívání. Nabízí tak dostatek prostoru pro relaxaci, zahradničení i hraní dětí. Pro prodej bytu zajišťuji kompletní realitní a právní servis a financování hypotečním úvěrem. Kontaktujte mě pro domluvení prohlídky: Miroslav Hlaváč TAURUM reality Uvedené výměry jsou orientační.
Cena
2 490 000 Kč
Dispozice
2+1
Konstrukce
Cihla
Patro
Zvýšené přízemí
Výměra
64.4 m²
Číslo nabídky
260029






























