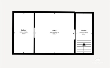
Představuji k prodeji chatu situovanou v oblíbené lokalitě vodní nádrže Hracholusky na adrese Butov ev. č. 18, okres Tachov. Pro lepší představu o chatě je Vám k dispozici i 3D virtuální prohlídka, video prezentace a fotogalerie včetně záběrů pořízených dronem. Ucelenou prezentaci pak můžete zhlédnout na odkaze, který je součástí video prohlídky. LOKALITA: Butov je malebná rekreační osada v krásném lesním prostředí, ležící 10 min. jízdy autem od Stříbra u vodní nádrže Hracholusky. Nalezneme zde restauraci, pláže na koupání či přístaviště Škoda pro pravidelnou osobní lodní dopravu po Hracholuské přehradě. V okolí se nachází krásná příroda se spoustou turistických tras a cyklostezek. Jedná se o ideální a dobře dostupné místo pro relaxaci a odpočinek v přírodě. Hracholuská přehrada patří mezi nejvyhledávanější rekreační místa v západních Čechách. Chata se nachází v klidné části osady, 5 min. pohodové chůze od pláže. INFORMACE O CHATĚ: Chata je cihlová s plechovou střešní krytinou, postavená na stinném místě s přiměřeným odstupem od okolních chat (a tedy dostatečným soukromím). Sestává z velké obývací místnosti s prostorem pro kuchyňskou linku a terasy v přízemí a ložnice s předsíní a balkonem v patře, kam se dostaneme po dřevěném schodišti. Na chatu přímo navazuje místnost se suchým WC. Pod terasou chaty se nachází drobný skladovací prostor např. pro uschování dřeva. Za chatou dále nalezneme místo pro venkovní posezení a krb s udírnou. Celková užitná plocha je 73 m². Chata stojí na pozemku města Stříbra (většina chat v lokalitě), právním titulem k užívání chaty je nájemní smlouva na dobu neurčitou. Do chaty je zavedena elektřina, voda se čerpá z nedaleké společné studny na obecním pozemku. Vytápění chaty zajišťují krbová kamna. Chata je v dobrém stavu a nevybavená, což umožňuje novému majiteli upravit si finální podobu a vybavení dle svého přání. Dalším benefitem je prostorné parkování přímo u chaty, příjezd je po zpevněné cestě. Jedná se o pěknou chatu s dostatkem klidu a soukromí, ideální pro rodinnou rekreaci, v malebné krajině vodní nádrže Hracholusky s možností koupání, rybaření, houbaření či výlety do okolí. Pro koupi pro vás rád zařídím kompletní realitní a právní servis, včetně možnosti financování prostřednictvím hypotečního úvěru. Kontaktuje mě, prosím, pro domluvení prohlídky. Budu se na Vás těšit. Mgr. Lukáš Pytlík TAURUM reality Uvedené výměry jsou orientační.
Cena
1 139 000 Kč
Dispozice
2+kk
Konstrukce
Cihla
Výměra
73 m²
Číslo nabídky
250138





























