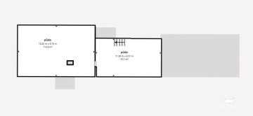
Představujeme k prodeji bývalou zemědělskou usedlost (rodinný dům) se zahradou, stavebním pozemkem a ovocným sadem na kraji obce Netunice, v okrese Plzeňjih. Podívejte se na samostatnou stránku v odkaze ve videoprohlídce. Informace o lokalitě: Netunice jsou vzdálené 20 km od centra Plzně, 13 km od nákupního centra Olympie Plzeň. Netunice mají bohatou historii — první písemná zmínka o obci pochází už z roku 1192, kdy zde hospodařili sedláci a domkáři. Obec Netunice je malá, přátelská a velmi klidná lokalita v okrese Plzeňjih. Najdete zde krásné okolí ideální pro procházky, cykloturistiku a venkovský život s přírodou na dosah. Nedaleko se nachází zámek Nebílovy, několik turistických tras a základní občanská vybavenost v blízkých obcích. Informace o domě: Dům je umístěný na úplném kraji vesnice. Jedná se o původní zemědělské stavení, které je tvořeno obytnou částí o dispozici 4+1, dílnou se sklady a půdním prostorem. V další části najdeme garáž, prádelnu, chlévy, další půdní prostor a velikou stodolu. Tento objekt byl vystaven v roce 1942 a je v původním stavu vhodném k rekonstrukci. Dům stojí na pozemku o velikosti 1.300 m2, na něj navazuje další stavební parcela se včelínem. Tato parcela má 2.607 m2 a dále ovocný sad o velikosti 1.653 m2. Příjezd k domu je po obecní asfaltové komunikace a ke stavební parcele za domem vede také obecní příjezdová cesta. Informace o sítích: Dům je momentálně připojený k elektřině. Voda byla čerpaná z vlastní studny, která je již nějakou dobu nevyužívaná. Odpad je sveden do septiku. Vodovodní řad a úpravna vody je nově vybudovaná a v přípravě pro kolaudaci, která proběhne v roce 2026. Původní majitel již zažádal o připojení na vodovodní přípojku. Kanalizace v obci je a lze ji připojit schválenou domácí čistírnou odpadních vod. V obci je vybudovaná optická síť k připojení k internetu. Plyn v obci není zaveden. Výměry: Užitná plocha obytné části 4+1: 127 m2 Celková plocha parcel: 5.560 m2 Plocha zbylých prostor (stodoly, chlévy, prádelna, garáž): 763 m2 Hledáteli místo k bydlení, k podnikání, k obojímu, k vytvoření Vašeho podnikatelského záměru, místo, které bude skvěle dostupné z Plzně a zároveň v přírodě, na hezkém místě s vůní jablek, zavolejte mi nebo napište, místo vám ukážu. Pro koupi zajistíme kompletní realitní a právní servis a financování hypotečním úvěrem. Kontaktujte mě, prosím, pro domluvení prohlídky: Bc. Hana Procházková TAURUM reality s.r.o. Uvedené výměry jsou orientační. Z důvodu stáří stavby neevidujeme PENB, proto uvádíme třídu G.
Cena
6 190 000 Kč
Dispozice
4+1
Konstrukce
Smíšená
Výměra
300 m²
Číslo nabídky
250171


























