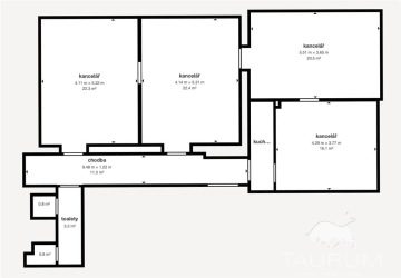
PRONAJATO - Představujeme k pronájmu kancelářské prostory se dvěmi parkovacími místy ve dvoře a skladem na adrese Harantova 17, Plzeň. Kanceláře jsou v přízemí cihlového domu. Jedná se o 4 samostatné kanceláře o výměře 82 m2, kuchyňku a toalety. Kanceláře se budou pronajímat vyklizené, prázdné, k dispozici zůstane kuchyňská linka s myčkou. Na dvoře domu jsou k dispozici 2 parkovací místa a venkovní zamykací krytý sklad o výměře cca 23 m2 a výšce 2,8 m. Plus je možné na dvoře využít prostor, kde může parkovat třeba přívěsný vozík. V kancelářích je zabezpečovací systém, který je možné využít a je na něj možné i instalovat kamery. Vytápění je zajištěno plynovým kotlem, v místnostech jsou radiátory. Teplou vodu ohřívá průtokový ohřívač. Nájemné 19.500 Kč / měs., hrazeno vždy do 20. v měsíci na další měsíc. Záloha na služby 500 Kč / měs, hrazena společně s nájemným do 20. v měsíci na další měsíc (je to záloha na vodu, popelnice a elektřinu společných prostor). Elektřinu a plyn si přepíše nájemník na sebe. Pronajímané prostory mají vlastní vodoměr, plynoměr i elektroměr. Jednorázové platby: - vratná kauce na začátku nájemního vztahu 39.000 Kč - nájemné a poplatek za služby za první měsíc 19.500 Kč + 500 Kč = 20.000 Kč - poplatek realitní kanceláři 19.500 + DPH 21%, celkem tedy 23.595 Kč Kanceláře budou k dispozici od 1.7.2024. Kontaktujte mě pro domluvení prohlídky: Jan Štěpánek TAURUM reality
Cena
19 500 Kč
Konstrukce
Cihla
Patro
Přízemí
Číslo nabídky
240055



















Svým klientům zajistím prodej jejich domu, bytu, pozemku.
Více o tom, jak pracuji naleznete na mém webu.