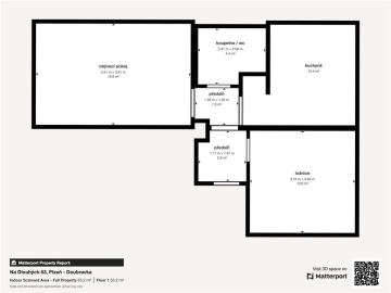
REZERVOVÁNO - Představuji Vám k prodeji moc pěkný byt po kompletní rekonstrukci o dispozici 2+1 v revitalizovaném panelovém domě s výtahem, v Plzni na Doubravce. Samostatná stránka bytu: https://bytnadlouhych.cz Byt informace: > dispozice 2+1, 58 m2 > 5. patro (poslední) > sklep (1,1 m2) > okna plastová s 2 skly > kompletně vybavený > topení, voda - dálkově > plyn zaveden (momentálně se nepoužívá) > elektřina v mědi > voda v plastu > kompletní rekonstrukce v roce 2019 (elektřina, koupelna, podlahy, dveře, kuchyně, osvětlení) V roce 2019 proběhla kompletní a velmi zdařilá rekonstrukce bytu vč. úpravy dispozice. V kuchyni je na zakázku vyrobená moderní a praktická kuchyňská linka od kuchyňského studia Kuchyně Kuchař se spotřebiči - lednice s mrazákem značky Liebherr, elektrická horkovzdušná trouba a indukční varná deska značky Electrolux, digestoř s odtahem značky Electrolux a myčka značky MORA. V koupelně, která je zděná, zase oceníte velký sprchový kout typu Walk-in (100 x 100 cm, bez vaničky), vše v provedení od firmy SENESI, s koupelnovou skříňkou na míru, navíc s novou pračkou značky ETA z roku 2023 a koupelnovými dveřmi značky SOLODOOR. V celém bytě jsou nově udělané izolované podlahy s kvalitní vinylovou krytinou a korkovou podložkou pro pohodlnější a měkčí chůzi, v koupelně je dlažba. Původní dveře byly vyměněné za nové posuvné dveře do pouzdra značky SOLODOOR. Dále jsou v celém bytě sádrokartonové podhledy a všude je bodové osvětlení. Drobností k úpravě/výměně jsou vchodové dveře do bytu. Byt se nabízí kompletně vybavený vč. nových vestavěných skříní z dubna letošního roku. Zkrátka opravdu komfortní a moderní bydlení, navíc ve skvělé lokalitě. Byt bude k dispozici k nastěhování od 02/2025. Dům informace: > panelový dům po kompletní revitalizaci > sklep > nový výtah > stoupačky v plastu > v domě je k dispozici prádelna, sušárna, kolárna/kočárkárna a dílna Dům je po dokončené revitalizaci - nová fasáda, zateplení, střecha, výtah, okna, vstupní dveře. Úklid v domě zajišťuje úklidová firma. Dům je bez úvěru, s dostatečnou rezervou ve fondu oprav. V domě je u vstupu zaveden kamerový systém a také zabezpečovací protipožární systém. Lokalita: Byt se nachází v dostupnosti kompletní občanské vybavenosti. V těsné blízkosti domu je pošta, poliklinika škola, školka a nákupní středisko OC Doubravka, Lidl a Norma. Pár minut chůzí je park Špitálský les. Pokud hledáte byt v perfektním stavu bez nutných úprav a zařizování, na ideálním místě v Plzni, ozvěte se mi, domluvíme si prohlídku. Pro koupi bytu Vám zajistím kompletní realitní a právní servis a v případě potřeby i výhodné financování hypotečním úvěrem.
Cena
4 590 000 Kč
Dispozice
2+1
Konstrukce
Panel
Patro
5. patro
Výměra
58 m²
Číslo nabídky
240128

























