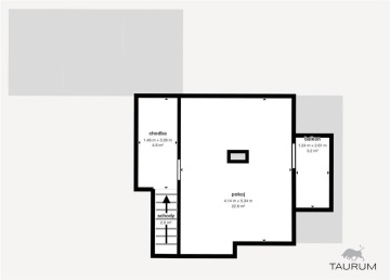
REZERVOVÁNO - Představuji vám k prodeji stavební pozemek s původní chatou v Plzni, v klidné části Červnové ulice v lokalitě známé jako Výsluní. Ucelenou prezentaci můžete shlédnout na odkaze, který je součástí video prohlídky. Základní informace chata: > 2+kk (+ 1 menší pokojík) > užitná plocha chaty 54 m2 > balkon 3,2 m2 > terasa 9,1 m2 > elektřina 230V (původní hliník) > odpad vyvážecí jímka > vytápění kamna na tuhá paliva > uvedené výměry jsou orientační Další prostory: > sklep 7,5 m2 > dílna 16,6 m2 > pozemek 416 m2 > voda z vlastního vrtu Na oploceném pozemku o výměře 416 m2 stojí zděná chata, orientovaná na jih. Chata je přízemní s podkrovím a je částečně podsklepena. Na chatu navazuje dílna, která má dva vchody do zahrady a jeden vchod do sklepa. V chatě je elektřina a topení je řešeno kamny na tuhá paliva. Odpad je sveden do vyvážecí jímky. Z přízemí chaty je možné vstoupit do zahrady vchodem přes terasu. Na pozemku je zbudovaný vrt, voda však není v tuto chvíli do chaty zavedena. Zahrada, která se nachází v zadní části za chatou zajišťuje tak dostatek soukromí a nabízí Vám ideální místo pro relaxaci a odpočinek. Pokud rádi tráví čas aktivně, je zde možnost zahradničení, k tomu můžete také využít funkční skleník, který je součástí zahrady. Na zahradě je ještě retenční nádrž na záchyt dešťové vody a malá kolna. Přístupová cesta k pozemku je obecní, je zpevněná a je slepá. Parkování je možné na vlastním pozemku, případně na této cestě. Pozemek se nachází v ploše smíšené obytné a k dispozici je také zpracovaná studie přestavby původní chaty a jejího možného rozšíření cca o 60 m2. Lokalita: Výsluní se nachází na okraji Plzně, což zajišťuje klidné prostředí, ale zároveň snadný přístup do centra města. To je ideální pro ty, kteří chtějí uniknout městskému ruchu, ale stále mít blízko k veškeré občanské vybavenosti. Pokud hledáte klidné místo, kde můžete bez obav relaxovat, máte rádi venkovské prostředí na dosah okolní přírody, přesto v dobré dojezdovosti města s plnou občanskou vybavenosti, pak mi zavolejte nebo napište, domluvíme si prohlídku. Pro koupi pozemku s chatou Vám zajistím kompletní realitní a právní servis a v případě potřeby i výhodné financování hypotečním úvěrem.
Cena
4 590 000 Kč
Výměra
416 m²
Číslo nabídky
250068



























