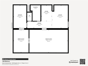
REZERVOVÁNO - Představuji k prodeji velký rodinný dům 6+1 s velkou garáží ve Starém Plzenci na adrese Máchova 978. Podívejte se na samostatnou stránku domu dumstaryplzenec Na této stránce naleznete i podrobné předprohlídkové video, 3D sken nemovitosti a více fotografií. Dům je součástí řady 5 domů a byl postavený v roce 1982 na pozemku o celkové rozloze 434 m2, který je udržovaný a má přístup i zadní bránou pro vjezd automobilu. Dispozice domu Obytná část domu je o dispozici 6+1, užitná plocha je 247 m2. Obytná plocha pak 156 m2. Dům je kompletně podsklepený, má dvě nadzemní podlaží a garáž pro 2 automobily. Dům se prodává kompletně vyklizený, nastěhování je možné dle dohody. Technické informace • Dům je napojen na inženýrské sítě (voda, elektřina, plyn kanalizace) • Vytápění je zajištěno plynovým kotlem Junkers (pravidelný servis + revize) • Komín ke kotli je nově vyvložkovaný v roce 2017 (pravidelné kontroly) • Teplá voda – bojler (2021/120 l) • Stoupačky jsou plastové • Obvodové zdivo cihla 375 mm bez zateplení • Elektřina 230/400 (měď) • Okna plastová dvojskla (2007) • Okna v suterénu + do ulice mají bezpečnostní folie • Střecha je plochá, folie s izolací 100 mm (2007) • Podlahy jsou betonové + dlažba, vinil, lamino, koberce • Schodiště je ocelové + dřevěné schodnice • V každém patře je koupelna a zvlášť WC • Do domu je zavedené optické připojení k internetu Pro prodej domu zajistím kompletní realitní a právní servis, případně financování hypotečním úvěrem. Kontaktujte mě prosím pro domluvení prohlídky Michal Kovařík TAURUM reality s.r.o. Uvedené výměry jsou orientační
Cena
8 490 000 Kč
Dispozice
6+1
Konstrukce
Cihla
Výměra
247 m²
Číslo nabídky
240153






























