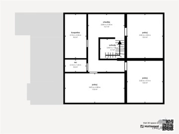
REZERVOVÁNO - Představuji k prodeji novostavbu prostorného rodinného domu o dispozici 6+kk se zahradou a krytým garážovým stáním, situovanou na adrese Karlovarská 279, Unhošť, v lokalitě s výbornou dostupností do Prahy. Podívejte se na samostatnou stránku domu odkaz naleznete ve videoprohlídce. Kompletní představu o dispozici a prostorovém uspořádání domu si nejlépe uděláte z 3D virtuální prohlídky domu zde v inzerci. Lokalita: Obec Unhošť se nachází přibližně 10 minut jízdy západně od Prahy, což zajišťuje výbornou dostupnost do hlavního města. Dům je situován v okrajové části obce. Dispozice: Dům je dvoupodlažní, o dispozicí 6+kk a celkové podlahové ploše 172 m2. V přízemí se nachází dva neprůchozí pokoje, prostorný obývací pokoj propojený s jídelním prostorem a kuchyní, předsíň, koupelna s toaletou a sprchovým koutem a technická místnost s přípojkou na pračku. Ve druhém podlaží se nachází tři neprůchozí pokoje, koupelna s vanou a sprchovým koutem a samostatná toaleta. V podkroví je praktický půdní prostor vhodný pro skladování. Před domem se nachází terasa zastřešená pergolou a na pozemku je také kryté garážové stání s vlastním vjezdem. Celková výměra pozemku činí 455 m2. Technické informace: Dům byl postaven na místě původní stavby, přičemž byly zachovány pouze 3 obvodové zdi, jinak je vše kompletně nové. Dům je zděný, se střechou pokrytou betonovými taškami. Okna jsou plastová s trojskly, některá opatřena předokenními žaluziemi nebo roletami. Vytápění zajišťuje tepelné čerpadlo s teplovodním podlahovým rozvodem po celém domě. Voda je přivedena z obecního vodovodu a na pozemku se nachází také studna. Ohřev vody je řešen bojlerem. Odpad je sveden do obecní kanalizace. Plynová přípojka je na hranici pozemku. Dům je vybaven moderními materiály, včetně vinylových podlah, dlažby a betonového schodiště s dřevěným obložením. Právní informace: Na domě neváznou žádná právní omezení, ani břemena. Dům je možné financovat hypotečním úvěrem. Tento dům doporučuji vzhledem k tomu, že je ve skvělém stavu bez nutnosti dalších investic, pěknou rovinatou zahradu s garážovým stáním a velmi dobrou dostupnost do Prahy. Pro koupi domu zajišťuji kompletní realitní a právní servis včetně financování hypotečním úvěrem. Kontaktujte mě, prosím, pro domluvení prohlídky: Jan Štěpánek TAURUM reality Uvedené výměry jsou orientační.
Cena
14 490 000 Kč
Dispozice
6+kk
Konstrukce
Smíšená
Výměra
180 m²
Číslo nabídky
250066





























