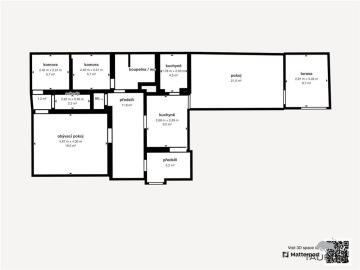
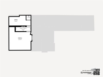
REZERVOVÁNO - Představuji k prodeji rodinný dům určená k rekonstrukci s velkým rovinatým pozemkem na adrese Šiškova 192, Mirošov. Dům se nachází v klidné lokalitě obce v okrajové části. Dopravní dostupnost: K pozemku vede zpevněná komunikace. Vzdálenost na vlak: 450m, na autobus: 450m. Do centra Mirošova 2 min, do Rokycan 7 min, na dálnici D5 11 min. Parkovat je možné jak na pozemku, tak i v ulici. Dispozice domu: Dům je o dispozici 4+1 + venkovní terasa a sklep. Na pozemku stojí další stavení: dřevěná kůlna a menší přístřešek. Technické informace: Dům je napojen na inženýrské sítě: plynovod, obecní vodovod, elektřina 230 i 400V. Kanalizace je svedena do septiku na pozemku. Vytápění v domě je zajištěno 3x plynovými kamny (vafky) a kamny na tuhá paliva. Dům je postaven z cihel a z tvárnic. Střecha je plochá, plechová. Okna dřevěná. Dům je určen k celkové rekonstrukci, případně k demolici. Pozemek: Pozemek je obdélníkového tvaru o rozměrech cca 93 x 35m. Je oplocený a kompletně rovinatý. Využitelná plocha pozemku je cca 3.180 m2. Ve vlastnictví prodávajících (a tedy i předmětem prodeje) je i pruh pozemku před pozemkem, který slouží jako přístupová cesta i pro vedlejší pozemek. Tento pozemek (cca 134 m2) tedy není započítán do využitelné plochy (3.180 m2). Celkový výměra pozemku (včetně cesty) je 3.322 m2. Na zmíněné cestě je břemeno průchodu a průjezdu pro vedlejší pozemek. Hlavní (oplocený) pozemek je bez právního zatížení. Pozemek je možné ponechat vcelku, nebo rozdělit například na 2 nebo 3 pozemky a realizovat zde výstavbu i více rodinných domů. Dle územního plánu je pozemek v lokalitě určené pro bydlení. Pro koupi domu s pozemkem zajistím kompletní realitní a právní servis. Kontaktujte mě prosím pro domluvení prohlídky. Jan Štěpánek TAURUM reality Uvedené výměry jsou orientační. Vzhledem k tomu, že dům je na kompletní rekonstrukci, či na demolici, PENB není k dispozici a uvádíme třídu G.
Cena
4 990 000 Kč
Dispozice
4+1
Konstrukce
Cihla
Výměra
3322 m²
Číslo nabídky
250026
























