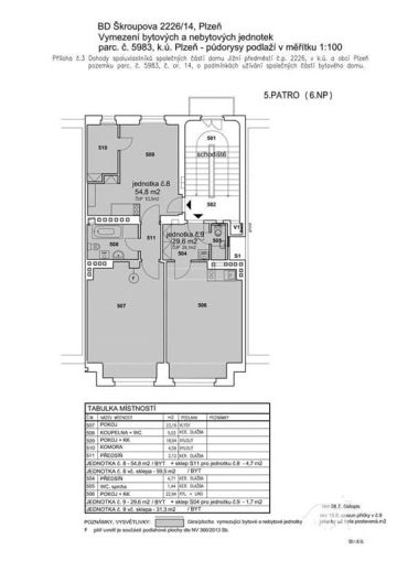
PRODÁNO - Představuji k prodeji byt o dispozici 1+kk a výměře 29,6 m2 ve 5. patře cihlového domu v centru Plzně na adrese Škroupova 14. V tomto domě jsou k prodeji 3 byty. Podívejte se na samostatnou stránku jednotlivých bytů: https://byty-skroupova.cz Dům, ve kterém se byt nachází je vzdálený 2 bloky od historického centra města. Blízko je MHD, pošta, místní obchody, přesto je však dům v klidné lokalitě. Parkovat lze přímo před domem nebo v okolních ulicích. Byt je v původním stavu, vhodný rekonstrukci a je ihned volný k předání. Dispozice bytu: V bytě je 1 pokoj s prostorem pro kuchyňský kout, předsíň a koupelna s wc. Okno pokoje směřuje do ulice. K bytu patří neohraničený nezrekonstruovaný sklepní prostor o výměře cca 1,7 m2. Technické informace: Vytápění bytu bylo zajištěno plynovými kamny - vafkami. Ohřev teplé vody zajišťuje průtokový plynový ohřívač umístěný v předsíni. Okna v bytě jsou dřevěná. Jako podlahové krytiny jsou použity: dlažba a linoleum. Do bytu je zavedena plynová přípojka, elektřina, vodovod a kanalizace. Byt doporučuji zejména tomu, kdo ocení byt v klidné lokalitě v centru Plzně, s vynikající dopravní dostupností a možností parkovat přímo před domem. Pro koupi bytu zajistím kompletní realitní a právní servis. V případě více zájemců bude byt prodán zájemci, který předloží nejvýhodnější nabídku. Kontaktujte mě pro domluvení prohlídky: Jan Štěpánek TAURUM reality
Cena
2 290 000 Kč
Dispozice
1+kk
Konstrukce
Cihla
Patro
5. patro
Výměra
29.6 m²
Číslo nabídky
220084








Svým klientům zajistím prodej jejich domu, bytu, pozemku.
Více o tom, jak pracuji naleznete na mém webu.