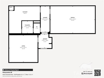
PRODÁNO - Představuji k prodeji byt v původním stavu o dispozici 2+1 a výměře 56 m2 v 1. patře revitalizovaného panelového domu s výtahem na adrese Rokycanská 26, Plzeň. Podívejte se na samostatnou stránku bytu: byt-rokycanska.cz. Dům, ve kterém se byt nachází, je revitalizovaný a má nový výtah. Je nově udělaná fasáda, plastová okna, stoupačky, vchodové dveře, zvonky. Dům má východ jak do vnitrobloku směrem k parkovišti, tak i směrem do Rokycanské ulice. V těsné blízkosti domu jsou potraviny, Lobezský park, škola, školka, sportoviště a zastávky MHD. Byt je umístěný v 1. patře domu. Je zcela v původním stavu, vhodném k rekonstrukci. Pokoje má neprůchozí. Jeden pokoj je orientovaný na sever do Rokycanské ulice z plastových, speciálních protihlukových oken a druhý pokoj směřuje do vnitrobloku na jižní stranu. Kuchyně je rovněž orientovaná na sever. V místnostech jsou položeny parkety v kombinaci s původní dlažbou v chodbě, koupelně a v kuchyni. Koupelnové jádro je umakartové. K bytu patří sklepní kóje. Vytápění i ohřev vody jsou řešeny dálkově, v jednotlivých místnostech jsou radiátory. Internet je možné připojit od poskytovatele Pilsfree. Pokud hledáte byt s možností si jej kompletně zrekonstruovat podle svých představ, zavolejte mi nebo napište, byt Vám ráda ukážu. Pro koupi bytu zajistím kompletní realitní a právní servis a financování hypotečním úvěrem. Kontaktujte mě pro domluvení prohlídky: Bc. Hana Procházková TAURUM reality
Cena
3 150 000 Kč
Dispozice
2+1
Konstrukce
Panel
Patro
1. patro
Výměra
56 m²
Číslo nabídky
240075

















Svým klientům pomáhám prodat jejich nemovitost lépe a rychleji, než by zvládli sami. Více o tom, jak pracuji naleznete na mém webu.
Domluvte si se mnou prohlídku
Hana Procházková
+420 728 174 601
hana.prochazkova@taurum.cz
https://www.hanaprochazkova.cz