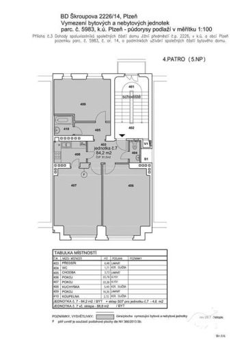
PRODÁNO - Představuji k prodeji byt o dispozici 3+1 a výměře 84,2 m2 ve 3. patře cihlového domu v centru Plzně na adrese Škroupova 14. V tomto domě jsou k prodeji 3 byty. Podívejte se na samostatnou stránku jednotlivých bytů: https://byty-skroupova.cz Dům, ve kterém se byt nachází je vzdálený 2 bloky od historického centra města. Blízko je MHD, pošta, místní obchody, přesto je však dům v klidné lokalitě. Parkovat lze přímo před domem nebo v okolních ulicích. Byt je jediný na patře, je po nedávné kompletní rekonstrukci a je ihned volný k nastěhování. Dispozice bytu: V bytě jsou 3 samostatné neprůchozí pokoje, koupelna s vanou, oddělené wc, předsíň a kuchyně. K bytu patří neohraničený nezrekonstruovaný sklepní prostor o výměře cca 5 m2. Technické informace: Vytápění bytu je zajištěn elektrickými přímotopy v pokojích. Ohřev teplé vody zajišťuje bojler umístěný v kuchyni. Okna v bytě jsou dřevěná. Jako podlahové krytiny jsou použity: dlažba - v koupelně, v kuchyni a na toaletě; parkety - ve 2 pokojích a v předsíni; plovoucí lamino podlaha - ve třetím pokoji. Okna 2 směřují do ulice, okna třetího pokoje do vnitrobloku. V bytě jsou nové rozvody, včetně elektroinstalace. Byt doporučuji zejména tomu, kdo ocení byt v klidné lokalitě v centru Plzně, s vynikající dopravní dostupností a možností parkovat přímo před domem. Pro koupi bytu zajistím kompletní realitní a právní servis. V případě více zájemců bude byt prodán zájemci, který předloží nejvýhodnější nabídku. Kontaktujte mě pro domluvení prohlídky: Jan Štěpánek TAURUM reality
Cena
4 990 000 Kč
Dispozice
3+1
Konstrukce
Cihla
Patro
4. patro
Výměra
84.2 m²
Číslo nabídky
220083
















Svým klientům zajistím prodej jejich domu, bytu, pozemku.
Více o tom, jak pracuji naleznete na mém webu.