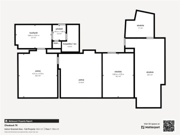
PRODÁNO - Představujeme prodej domu na kraji obce Chodouň v okrese Beroun. Dům je umístěný na vršku na kraji obce u lesa s krásným výhledem do okolí. Je ve zcela původním stavu, vhodném k rekonstrukci. Jeho dispozice je 2+1 + komora a vstupní veranda. Je nepodsklepený, má jedno nadzemní podlaží a neobytnou půdu. Sítě: Voda - přivedena z obecního vodovodu + na pozemku je studna Odpad - svedený do vyváženého septiku + v obci je dešťová kanalizace Elektřina- zavedena Plyn - není Ohřev vody - zajišťuje elektrický bojler Vytápění - řešeno dvěma kamny na dřevo Výměry: Celková plocha pozemku: 310 m2 Užitná plocha: 106,4 m2 Obytná plocha: 59,5 m2 Chodouň je malá obec s klidným venkovským charakterem. Je výborně dostupná do Zdic (5km) a Berouna (10km), kde nalezneme veškerou občanskou vybavenost. Pokud Vás dům zaujal a chtěli byste se na něj přijet podívat, zavolejte mi nebo napište. Dům Vám ráda ukážu. Pro koupi zajistím kompletní realitní a právní servis, případně financování hypotečním úvěrem. Bc. Hana Procházková TAURUM reality s.r.o.
Cena
2 390 000 Kč
Dispozice
2+1
Konstrukce
Smíšená
Výměra
59.5 m²
Číslo nabídky
240088



























