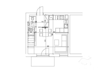
PRODÁNO - Představuji k prodeji nadstandardně vybavený mezonetový byt ve velmi dobrém stavu o dispozici 4+kk se 2 vnitřními garážovými stáními a zděným prostorným sklepem na adrese Tachovská 1556/3, Praha Radotín. Podívejte se na samostatnou stránku bytu: https://byt-tachovska.cz Na stránce naleznete i 3D virtuální prohlídku, technické fotografie bytu a půdorysy s výměrami. Byt se nachází ve 3. a 4. patře cihlového domu z roku 2012 v Radotíně na klidném místě s rezidenční zástavbou, blízko veškeré občanské vybavenosti, autobusového i vlakového nádraží Radotín a i například přípojky na D1 a D5, nebo Berounky, kam je možné chodit na příjemné procházky. Vynikající je tedy dopravní spojení jak do centra města, tak i například na letiště (cca 20 min). Dispozice bytu: Byt je o dispozici 4+kk a výměře 83 m2. Ve 4. nadzemním podlaží je vstupní zádveří se šatní skříní, toaleta s místem na pračku a sušičku, obývací pokoj, kuchyňský kout a balkon. V 5. nadzemním podlaží jsou 3 neprůchozí pokoje se samostatnými vstupy, 1 koupelna s vanou a WC, druhá koupelna se sprchovým koutem a šatna, ve které je umístěný trezor. K bytu také patří 2 garážová stání umístěná přímo v domě a zděný sklep. Technické informace: Byt je nadstandardně zařízený. Všechny obytné místnosti jsou klimatizované, jsou zde tedy 4 klimatizační jednotky. Podlahy jsou v celém bytě vinylové, kromě koupelen a WC, kde je dlažba. Schody do patra jsou ocelové, také kryté vinylem a navíc osvětlené schodišťovým osvětlením. Na všech oknech jsou instalované elektricky ovládané předokenní rolety, střešní okna v patře jsou navíc vybavena trojskly a stahovacími síťkami proti hmyzu. Okna jsou plastová. Byt je vybaven systémem Jablotron s pohybovými čidly a signalizací požáru. Vstupní dveře i balkonové dveře jsou opatřené čidly proti nežádoucímu otevření. Příčky se sousedícím bytem jsou dole i nahoře akustické. Kuchyňská linka obsahuje lednici, mrazák, indukční varnou desku a digestoř s odtahem. V šatně v patře je trezor. Vytápění i ohřev vody jsou řešeny dálkově (v domě je místní kotelna), v jednotlivých místnostech jsou radiátory a v koupelně s vanou je navíc elektrické podlahové vytápění. Úklid v domě je zajištěn firmou. Poznámka k ceně: Cena je uvedena konečná, včetně odměny za zprostředkování prodeje realitní kanceláři. Na bytě nevázne žádné právní břemeno, ani zástavní právo. V ceně bytu je i vybavení a nábytek (vyjma houpačky a osobních věcí). Byt doporučuji zejména vzhledem k jeho nadstandardnímu vybavení, skvělému stavu, 2 garážovým stáním a umístění s vynikající dopravní dostupností. Pro prodej bytu zajistím kompletní realitní a právní servis a financování hypotečním úvěrem. Kontaktujte mě prosím pro domluvení prohlídky: Jan Štěpánek TAURUM reality
Cena
10 900 000 Kč
Dispozice
4+kk
Konstrukce
Cihla
Patro
3. patro
Výměra
83 m²
Číslo nabídky
230095
































Svým klientům zajistím prodej jejich domu, bytu, pozemku.
Více o tom, jak pracuji naleznete na mém webu.