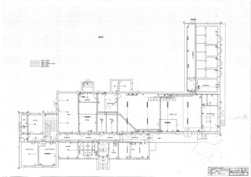
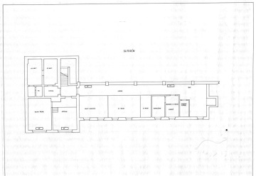
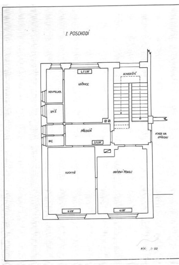
Představuji k prodeji komerční pozemek 29.284 m2 vhodný dle územního plánu na lehkou průmyslovou výrobu, logistiku, sklady, servis... apod... vše se střední a malou emisní vydatností, který je umístěný v Ostravě - Svinově na adrese Ostravská 568/2a. Podívejte se na samostatnou stránku: https://areal-svinov.cz Na této stránce naleznete i další podrobnější informace a dokumenty ke stažení. Areál se nachází na okraji města, 1,5 km od dálnice D1 a 2km od nádraží Ostrava Svinov. Přístup do areálu je po asfaltové komunikaci ve vlastnictví kraje. Areál je oplocený a je napojený na tyto inženýrské sítě: - obecní vodovod - obecní dešťová kanalizace (průměr 150 mm) s vyústěním mimo areál - 2x podzemní linka vysokého napětí (2 x 250kVA, hlavní jistič 360A) - optické vlákno od O2 V areálu je kanalizační jímka o objemu 25 m3. Uprostřed pozemku stojí zděná cihlová podsklepená budova. Původní objekt byl postaven v třicátých letech minulého století, rekonstrukce byla provedena v roce 1977. V roce 1995 bylo provedeno zateplení části obvodového zdiva. Objekt je částečně podsklepený a jeho větší část má jedno nadzemní podlaží, jihozápadní ubytovací část objektu má dvě nadzemní a jedno podzemní podlaží. Obvodové zdivo jihozápadní části (dvě NP) je vyzděno z plných cihel v tl. 450 mm a je zatepleno fasádním zateplovacím systémem s tepelnou izolací z čedičové plsti o tl. 50 mm. Nižší jihovýchodní část objektu je vyzděna z cihel CDm v tl. 250 mm a zdivo je obloženo rovněž systémem. Střední část objektu s vysílacím sálem je ŽB skelet, vyzdívky jsou provedeny částečně z cihel CDm v tl. 250 mm a částečně z cihel plných v tl. 450 mm. Zdrojem tepla je kotelna na LTO, Kotelna je osazena celkem 2 ks shodných kotlů ACV typu ACV N3 na ELTO o výkonu 2 x (42-58) kW s hořáky ACV BMR-51. Pro ohřev TUV je instalován v suterénu ohřívač o objemu 400 l s elektrickou topnou spirálou 6000 W. Pro osvětlení objektu jsou použita převážně zářivková svítidla. Vytápění a ohřev vody je v budově řešen dvěma kotli na ELTO (extra lehké topné oleje). Vysílač, který stojí na pozemku, majitel odstraní. Mezi fotografiemi naleznete náčrtek možné výstavby haly s parkovacími místy. Územní plán, ani místní regulativ neomezuje jak procentuální zastavitelnost pozemku, tak ani výšku výstavby. Lze tedy předpokládat, že nová stavba by mohla být alespoň tak vysoká, jako současná budova, tedy cca 8 m. Na výše zmíněné stránce je možné stáhnout i upřesňující regulativ z územního plánu. Cena je uvedena bez DPH 21% a včetně odměny za zprostředkování prodeje. Pro prodej tohoto areálu zajišťuji kompletní realitní servis. Kontaktujte mě prosím pro další informace a případně prohlídku areálu. Jan Štěpánek TAURUM reality
Cena
50 400 000 Kč
Výměra
29284 m²
Číslo nabídky
230026































Svým klientům zajistím prodej jejich domu, bytu, pozemku.
Více o tom, jak pracuji naleznete na mém webu.