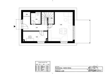
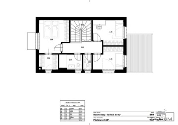
REZERVOVÁNO - Představuji k prodeji nově vznikající novostavbu rodinného domu č. 18 v rámci projektu Domy pod platany v Kosmonosích u Mladé Boleslavi. Kompletní informace o projektu, o samotném domě i o standardech a nadstandardech najdete na webových stránkách projektu: Domy pod platany. V rámci tohoto projektu vzniká na rovinaté louce jen pár minut od centra Mladé Boleslavi komplex 21 nových rodinných domů navržených renomovaným studiem Hora Architekti s.r.o. Jedná se o moderní dřevostavby realizované specializovanou stavební společností Vexta, která poskytuje na skelet domu 50 letou záruku. Dispozice domu: Dům č. 18 je řadový dvojdům o dispozici 5+kk a ploše 105 m2, stojící na pozemku o výměře 526 m2. Je možné objednat i prodlouženou variantu domu, která má plochu domu 120 m2. V domě jsou 4 samostatné pokoje, 1 obývací pokoj s kuchyňským prostorem, 2x koupelna s WC, další samostatné WC, šatna, úložný prostor pod schodištěm a místo pro technologie. Technické informace: Domy jsou již v základu vybaveny kvalitními standardy a technologiemi a dále je možné vybírat ze široké nabídky nadstandardního vybavení. Vytápění a ohřev vody jsou zajištěny tepelným čerpadlem vzduch voda zn. Vaillant se zásobníkem na teplou vodu a s možností chlazení v létě. Topným (chladícím) prvkem jsou podlahová teplovodní tělesa. Okna v domě jsou plastová vybavená trojskly. Dům je vybaven tepelnou i zvukovou izolací. Dům je napojen na obecní vodovod, kanalizaci i přípojku elektřiny. Součástí ceny domu je i oplocení, ručně ovládaná otevírací brána, štěrková příprava na chodníčky kolem domu a parkovací stání. Kompletní technické informace o domě a o vybavení obsaženém ve standardu je ke stažení na webových stránkách projektu. Stejně tak i seznam volitelných nadstandardů. Časový průběh a financování: Nyní do konce roku 2025 budou na pozemku vybudovány komunikace a přípojky sítí. Samotná výstavba domu dle objednávky klienta může započít na začátku 2026. Realizace domu trvá přibližně 5 měsíců, dům tedy může být hotový do poloviny roku 2026. S klienty bude postupně podepisována rezervační smlouva, smlouva o smlouvě budoucí a následně kupní smlouva na pozemek a smlouva o dílo na výstavbu domu. Dům je možné financovat prostřednictvím hypotečního úvěru. Pro koupi domu zajišťujeme s partnery kompletní realitní a právní servis a financování hypotečním úvěrem. Kontaktujte mě prosím pro další informace: Jan Štěpánek TAURUM reality Uvedené výměry jsou orientační
Cena
10 326 019 Kč
Dispozice
5+kk
Konstrukce
Dřevostavba
Výměra
105 m²
Číslo nabídky
250118








